本店
藤沢市本藤沢2丁目 2号棟
新築一戸建て
閲覧済み
本藤沢2丁目 藤沢本町駅 徒歩 15分 4380万円
毎月の返済額:12万円台
- おすすめ
- NEW
- 価格変更
- 会員限定
所在地
神奈川県藤沢市本藤沢2丁目交通
小田急江ノ島線 藤沢本町駅 徒歩 15分小田急江ノ島線 善行駅 徒歩 22分
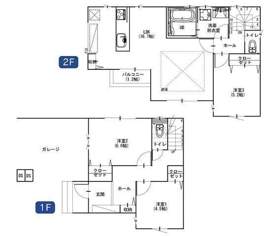
間取り
3LDK築年月
2025年05月完成建物面積
99.05㎡土地面積
84.69㎡
- 外観

- 外観
本藤沢2丁目 藤沢本町駅 徒歩 15分 4380万円
毎月の返済額:12万円台
所在地
神奈川県藤沢市本藤沢2丁目交通
小田急江ノ島線 藤沢本町駅 徒歩 15分小田急江ノ島線 善行駅 徒歩 22分
間取り
3LDK築年月
2025年05月完成建物面積
99.05㎡土地面積
84.69㎡| 物件名称 | 藤沢市本藤沢2丁目 2号棟 |
|---|---|
| 価格 | 4380万円 |
| 所在地 | 神奈川県藤沢市本藤沢2丁目 |
| 交通 | 小田急江ノ島線 藤沢本町駅 徒歩 15分 小田急江ノ島線 善行駅 徒歩 22分 |
| 間取り | 3LDK |
| 部屋 | 1F 洋 6.0帖 、1F 洋 4.5帖 、2F LDK 16.7帖 、2F 洋 5.2帖 |
| 建物面積 | 99.05㎡ |
| 土地面積 | 84.69㎡[公簿] |
| 地目 | 宅地 |
| 土地権利 | 所有権 |
| 築年月 | 2025年05月完成 |
| 建物構造 | 木造(W) |
| 建物階建 | 2階建(地下0階) |
| 建物向き | 南 |
| 総戸数/販売戸数 | 2戸 |
|---|---|
| 駐車場 | あり 敷地内 |
| 設備・条件 | 床暖房システムキッチンシャンプードレッサー追い焚きカウンターキッチンオートバス温水洗浄便座浴室乾燥機食器洗乾燥機給湯照明器具洗面化粧台シューズボックス床下収納全居室収納フローリングTVドアホンバルコニーガス:都市ガスコンロ:ガス、三口汚水:公共下水(使用可)雑排水:公共下水(使用可)水道:公営水道(使用可)洗濯機置場:室内トイレ:専用 |
| 都市計画 | 市街化区域 |
| 用途地域 | 第二種中高層住居専用地域 |
| 建ぺい率/容積率 | 60%/200% |
| 国土法の届出 | 不要 |
| セットバック | なし |
| 私道負担 | なし |
| 接道状況 | 一方 西:幅員16.0m公道 |
| 引渡時期 | 相談 |
| 物件情報更新日 | 2025年09月10日(物件情報更新日より14日以内に更新) |
| 物件コード | 123508233 |
| 取引態様 | 仲介 |
この物件のお問い合わせ先
本店
お電話でのお問い合わせ
03-5456-6031
〒106-6029
東京都港区六本木1丁目6番1号 泉ガーデンタワー
- [ TEL ]
- 03-5456-6030
- [ FAX ]
- 03-5456-6032
- [ 営業時間 ]
- 10:00 ~ 19:00
- [ 定休日 ]
- 毎週火曜日・水曜日
- [ アクセス ]
- 東京メトロ
南北線「六本木一丁目」駅直結(改札口正面)
日比谷線「神谷町」駅4b出口より徒歩7分
銀座線・南北線「溜池山王」駅13番出口より徒歩7分
日比谷線・都営大江戸線「六本木」駅5番出口より徒歩9分
都営バス
[都01]「六本木一丁目駅前」より徒歩4分
お車
首都高速環状線「霞ヶ関」より車で5分
首都高速環状線「飯倉」より車で2分
条件に近い物件
- 新築一戸建て5080万円神奈川県藤沢市高倉小田急江ノ島線 長後駅 徒歩 14分 相鉄いずみ野線 いずみ中央駅 徒歩 19分

- 新築一戸建て4680万円神奈川県藤沢市高倉小田急江ノ島線 長後駅 徒歩 14分 相鉄いずみ野線 いずみ中央駅 徒歩 19分

- 新築一戸建て4280万円神奈川県藤沢市高倉小田急江ノ島線 長後駅 徒歩 14分 相鉄いずみ野線 いずみ中央駅 徒歩 19分

- 新築一戸建て4680万円神奈川県藤沢市葛原小田急江ノ島線 湘南台駅 バス 7分 「仲之桜」 停歩 4分 横浜市営ブルーライン 湘南台駅 バス 7分 「仲之桜」 停歩 4分

- 新築一戸建て4699万円神奈川県藤沢市大庭東海道本線(東日本) 辻堂駅 バス 12分 「大庭小学校」 停歩 5分 小田急江ノ島線 善行駅 徒歩 39分

- 一部、完成後1年以上を経過した未入居物件が新築物件として掲載される場合がございます。
- 敷地権利が定期借地権のものは価格に権利金を含みます。
- 完成予想図はいずれも外構、植栽、外観等実際のものとは多少異なる場合がございます。
- CG合成の画像の場合、実際とは多少異なる場合がございます。
- 図面と現況が異なる場合には現況を優先いたします。
- 地積、建物床面積、仕様に変更が生じる場合がございます。
- 物件情報は最新のものをご提供させていただきますが、万一売約済の場合はご容赦ください。
- 建築条件付土地の販売は、売買契約後一定期間内に売主との間で建築請負契約を結ぶことが条件となり、この期間内に建築請負契約が成立しない場合は、受領金を全額返済した上で土地売買契約は白紙となります。
- 掲載物件の取引態様が「仲介」「一般」「専属」「専任」となっているものは、ご成約の際に規定の手数料及びそれに係わる消費税を別途申し受けます。
- 間取り表示のSはサービスルーム(納戸)の略称です。WICはウォークインクローゼット、DENは書斎の略称です。
- 参考プランは、土地の購入者の設計プランの参考に資するための一例であって、参考プランを採用するか否かは土地購入者の自由な判断に委ねられます。


