本店
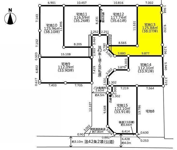
綾瀬市蓼川3丁目3期 宅地13
売地
閲覧済み
蓼川3丁目 相模大塚駅 徒歩 11分 2530万円
毎月の返済額:7万円台
- おすすめ
- NEW
- 価格変更
- 会員限定
所在地
神奈川県綾瀬市蓼川3丁目交通
相鉄本線 相模大塚駅 徒歩 11分小田急江ノ島線 大和駅 徒歩 34分
土地面積
125.88㎡建築条件
付き現地見学会開催スケジュール
開催日
2025年06月12日〜2026年06月12日時間
-〜-受付場所
-備考
現地案内会 公開中 事前に必ず予約してください
- 外観

- 間取図/区画図
- 間取図
蓼川3丁目 相模大塚駅 徒歩 11分 2530万円
毎月の返済額:7万円台
所在地
神奈川県綾瀬市蓼川3丁目交通
相鉄本線 相模大塚駅 徒歩 11分小田急江ノ島線 大和駅 徒歩 34分
土地面積
125.88㎡建築条件
付き| 物件名称 | 綾瀬市蓼川3丁目3期 宅地13 |
|---|---|
| 価格 | 2530万円 |
| 土地坪単価 | 66.44万円 |
| 所在地 | 神奈川県綾瀬市蓼川3丁目 |
| 交通 | 相鉄本線 相模大塚駅 徒歩 11分 小田急江ノ島線 大和駅 徒歩 34分 |
| 土地面積 | 125.88㎡[公簿] |
| 地目 | 畑 |
| 土地権利 | 所有権 |
| 土地現況 | 更地 |
| 建築条件 | 付き |
| 販売区画数/総区画数 | -/1区画 |
| 設備・条件 | ガス:都市ガス汚水:公共下水(使用可)雑排水:公共下水(使用可)水道:公営水道(使用可) |
| 都市計画 | 市街化区域 |
|---|---|
| 用途地域 | 第一種中高層住居専用地域 |
| 建ぺい率/容積率 | 60%/200% |
| 国土法の届出 | 不要 |
| セットバック | なし |
| 私道負担 | なし |
| 接道状況 | 一方 西:幅員4.5m私道 |
| 引渡時期 | 相談 |
| 備考 | ゴミ置場(約2.60m2)開発道路(約160.36m2)開発道路SB部分(約7.80m2)は、宅地9~15所有者にて持分を1/7ずつ所有いただきます。 |
| 物件情報更新日 | 2025年07月22日(物件情報更新日より14日以内に更新) |
| 物件コード | 123509715 |
| 取引態様 | 仲介 |
この物件のお問い合わせ先
本店
お電話でのお問い合わせ
03-5456-6031
〒106-6029
東京都港区六本木1丁目6番1号 泉ガーデンタワー
- [ TEL ]
- 03-5456-6030
- [ FAX ]
- 03-5456-6032
- [ 営業時間 ]
- 10:00 ~ 19:00
- [ 定休日 ]
- 毎週火曜日・水曜日
- [ アクセス ]
- 東京メトロ
南北線「六本木一丁目」駅直結(改札口正面)
日比谷線「神谷町」駅4b出口より徒歩7分
銀座線・南北線「溜池山王」駅13番出口より徒歩7分
日比谷線・都営大江戸線「六本木」駅5番出口より徒歩9分
都営バス
[都01]「六本木一丁目駅前」より徒歩4分
お車
首都高速環状線「霞ヶ関」より車で5分
首都高速環状線「飯倉」より車で2分
条件に近い物件
- 売地2580万円神奈川県綾瀬市深谷中8丁目相鉄本線 さがみ野駅 バス 15分 「綾瀬小学校前」 停歩 6分 小田急江ノ島線 高座渋谷駅 徒歩 43分

- 売地2830万円神奈川県綾瀬市蓼川3丁目相鉄本線 相模大塚駅 徒歩 11分 小田急江ノ島線 大和駅 徒歩 34分

- 売地2900万円神奈川県綾瀬市蓼川3丁目相鉄本線 相模大塚駅 徒歩 11分 小田急江ノ島線 大和駅 徒歩 34分

- 売地2530万円神奈川県綾瀬市蓼川3丁目相鉄本線 相模大塚駅 徒歩 11分 小田急江ノ島線 大和駅 徒歩 34分

- 売地3030万円神奈川県綾瀬市蓼川3丁目相鉄本線 相模大塚駅 徒歩 11分 小田急江ノ島線 大和駅 徒歩 34分

- 一部、完成後1年以上を経過した未入居物件が新築物件として掲載される場合がございます。
- 敷地権利が定期借地権のものは価格に権利金を含みます。
- 完成予想図はいずれも外構、植栽、外観等実際のものとは多少異なる場合がございます。
- CG合成の画像の場合、実際とは多少異なる場合がございます。
- 図面と現況が異なる場合には現況を優先いたします。
- 地積、建物床面積、仕様に変更が生じる場合がございます。
- 物件情報は最新のものをご提供させていただきますが、万一売約済の場合はご容赦ください。
- 建築条件付土地の販売は、売買契約後一定期間内に売主との間で建築請負契約を結ぶことが条件となり、この期間内に建築請負契約が成立しない場合は、受領金を全額返済した上で土地売買契約は白紙となります。
- 掲載物件の取引態様が「仲介」「一般」「専属」「専任」となっているものは、ご成約の際に規定の手数料及びそれに係わる消費税を別途申し受けます。
- 間取り表示のSはサービスルーム(納戸)の略称です。WICはウォークインクローゼット、DENは書斎の略称です。
- 参考プランは、土地の購入者の設計プランの参考に資するための一例であって、参考プランを採用するか否かは土地購入者の自由な判断に委ねられます。


