本店
塚本ハイツ
アパート
閲覧済み
中里1丁目 駒込駅 徒歩 4分 5.9万円
- おすすめ
- NEW
- 新築
- 会員限定
所在地
東京都北区中里1丁目20-1交通
山手線 駒込駅 徒歩 4分間取り
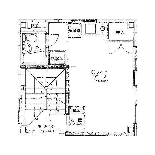
1R(1R)築年月
1984年10月完成専有面積
21.26㎡敷金(保証金)
なし 敷金積増:-礼金(権利金)
なし共益費・管理費
11,000円
- 外観

- 間取図/区画図
中里1丁目 駒込駅 徒歩 4分 5.9万円
所在地
東京都北区中里1丁目20-1交通
山手線 駒込駅 徒歩 4分間取り
1R(1R)築年月
1984年10月完成専有面積
21.26㎡敷金(保証金)
なし 敷金積増:-礼金(権利金)
なし共益費・管理費
11,000円| 物件名称 | 塚本ハイツ |
|---|---|
| 賃料 | 5.9万円 |
| 共益費・管理費 | 11,000円 |
| 敷金(保証金) | なし敷金積増:- |
| 礼金(権利金) | なし |
| 賃貸保証金 | なし |
| 賃貸権利金 | なし |
| 更新料 | あり(1.50ヶ月) |
| 火災保険 | 要 |
| 所在地 | 東京都北区中里1丁目20-1 |
| 交通 | 山手線 駒込駅 徒歩 4分 |
| 間取り | 1R(1R) |
|---|---|
| 専有面積 | 21.26㎡ |
| 築年月 | 1984年10月完成 |
| 所在階/建物階建 | 地上2階 203/3階建 |
| 駐車場 | なし |
| 設備・条件 | 照明器具シューズボックス分譲タイプフローリングCATV角部屋ガス:都市ガス洗濯機置場:室内冷暖房:エアコン二人入居:可 |
| 物件情報更新日 | 2017年12月08日(物件情報更新日より14日以内に更新) |
| 物件コード | 123478860 |
| 取引態様 | 仲介 |
| 契約条件 | 普通借家権 |
この物件のお問い合わせ先
- 間取り表示のSはサービスルーム(納戸)の略称です。WICはウォークインクローゼット、DENは書斎の略称です。
- 図面と現況が異なる場合には現況を優先いたします。
- 物件情報は最新のものをご提供させていただきますが、万一成約済の場合はご容赦ください。
- 掲載物件の取引態様が「仲介」となっているものは、ご成約の際に規定の手数料及びそれに係わる消費税を別途申し受けます。


