本店
ABLE日進
一棟アパート
閲覧済み
日進町3丁目 日進駅 徒歩 14分 4200万円 想定利回り(表面)9.52%
- おすすめ
- NEW
- 価格変更
- 会員限定
所在地
埼玉県さいたま市北区日進町3丁目交通
川越線 日進駅 徒歩 14分間取り
-築年月
1988年04月完成建物面積
-土地面積
148.78㎡
- 外観

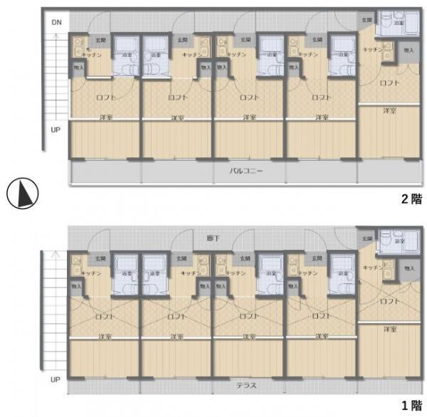
- 間取図/区画図
日進町3丁目 日進駅 徒歩 14分 4200万円 想定利回り(表面)9.52%
所在地
埼玉県さいたま市北区日進町3丁目交通
川越線 日進駅 徒歩 14分間取り
-築年月
1988年04月完成建物面積
-土地面積
148.78㎡| 物件名称 | ABLE日進 |
|---|---|
| 物件種目 | 一棟アパート |
| 価格 | 4200万円 |
| 利回り 表面/実質 | 9.52%- |
| 想定年間収入 | 400万2000円 |
| 権利金/保証金 | なし/なし |
| 所在地 | 埼玉県さいたま市北区日進町3丁目 |
| 交通 | 川越線 日進駅 徒歩 14分 |
| 土地面積 | 148.78㎡[公簿] |
| 地目 | 宅地 |
| 土地権利 | 所有権 |
| 築年月 | 1988年04月完成 |
|---|---|
| 建物構造 | 木造(W) |
| 建物階建 | 2階建 |
| 総戸数/販売戸数 | 10戸 |
| セットバック | なし |
| 私道負担 | なし |
| 引渡時期 | 相談 |
| 学区 | さいたま市立日進北小学校 約457m さいたま市立宮前中学校 約1232m |
| 物件情報更新日 | 2026年04月06日(物件情報更新日より14日以内に更新) |
| 物件コード | 123512600 |
| 取引態様 | 仲介 |
この物件のお問い合わせ先
本店
お電話でのお問い合わせ
03-5456-6031
〒106-6029
東京都港区六本木1丁目6番1号 泉ガーデンタワー
- [ TEL ]
- 03-5456-6030
- [ FAX ]
- 03-5456-6032
- [ 営業時間 ]
- 10:00 ~ 19:00
- [ 定休日 ]
- 毎週火曜日・水曜日
- [ アクセス ]
- 東京メトロ
南北線「六本木一丁目」駅直結(改札口正面)
日比谷線「神谷町」駅4b出口より徒歩7分
銀座線・南北線「溜池山王」駅13番出口より徒歩7分
日比谷線・都営大江戸線「六本木」駅5番出口より徒歩9分
都営バス
[都01]「六本木一丁目駅前」より徒歩4分
お車
首都高速環状線「霞ヶ関」より車で5分
首都高速環状線「飯倉」より車で2分
条件に近い物件
- 一部、完成後1年以上を経過した未入居物件が新築物件として掲載される場合がございます。
- 敷地権利が定期借地権のものは価格に権利金を含みます。
- 完成予想図はいずれも外構、植栽、外観等実際のものとは多少異なる場合がございます。
- CG合成の画像の場合、実際とは多少異なる場合がございます。
- 図面と現況が異なる場合には現況を優先いたします。
- 地積、建物床面積、仕様に変更が生じる場合がございます。
- 物件情報は最新のものをご提供させていただきますが、万一売約済の場合はご容赦ください。
- 建築条件付土地の販売は、売買契約後一定期間内に売主との間で建築請負契約を結ぶことが条件となり、この期間内に建築請負契約が成立しない場合は、受領金を全額返済した上で土地売買契約は白紙となります。
- 掲載物件の取引態様が「仲介」「一般」「専属」「専任」となっているものは、ご成約の際に規定の手数料及びそれに係わる消費税を別途申し受けます。
- 間取り表示のSはサービスルーム(納戸)の略称です。WICはウォークインクローゼット、DENは書斎の略称です。
- 参考プランは、土地の購入者の設計プランの参考に資するための一例であって、参考プランを採用するか否かは土地購入者の自由な判断に委ねられます。



