カスタムHTML:会員登録入力:バナー

川崎市川崎区の不動産物件一覧

現在の検索条件を見る

  • エリア:神奈川県川崎市川崎区
  • 中学校:南大師

3件1〜3件を表示

中古一戸建て

東門前2丁目  東門前駅 徒歩 5分  3980万円

毎月の返済額:11万円台
NO IMAGE
NO IMAGE

-

神奈川県川崎市川崎区東門前2丁目

京急大師線 東門前駅 徒歩 5分

築年月:2022年01月完成

間取り面積価格検討中
3DK土地 52.96㎡
建物 67.15㎡
3980万円{{buttonLabel}}
中古一戸建て

四谷上町  東門前駅 徒歩 18分  5090万円

毎月の返済額:14万円台
NO IMAGE
NO IMAGE
  • 価格変更

川崎区四谷上町 新築分譲住宅 1号棟

神奈川県川崎市川崎区四谷上町

京急大師線 東門前駅 徒歩 18分

築年月:2022年09月完成

間取り面積価格検討中
3LDK+S(納戸)土地 69.3㎡
建物 111.68㎡
5090万円DOWN{{buttonLabel}}
中古一戸建て

大師町  東門前駅 徒歩 7分  5180万円

毎月の返済額:15万円台
Thumb 1e50d6292c
Thumb 409a96c8f4
  • おすすめ

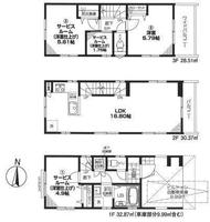
ミラスモシリーズ3 大師町 新築戸建 2号棟

神奈川県川崎市川崎区大師町

京急大師線 東門前駅 徒歩 7分

築年月:2022年10月完成

間取り面積価格検討中
3LDK+S(納戸)土地 50.13㎡
建物 91.75㎡
5180万円{{buttonLabel}}

カスタムHTML:会員登録入力:バナー

3件1〜3件を表示